
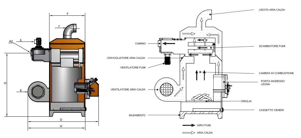
Arca wood and pellet hot air generator 50, 70, 100, 150, 250 kW
Lisätietoja löydät: ARCA S.r.l. boilers

Arca wood hot air generator 50, 70, 100, 150, 250 kW
Lisätietoja löydät: ARCA S.r.l. boilers

Lisätietoja löydät: ARCA S.r.l. boilers
ARCA kiinteän polttoaineen lämminilmakehittimet, ilmalämmittimet
Ei tulosta
